
Котел 750 КВт на угле в Анадыре
Цена 635 000 рублей с НДС
Модель с ручной колосниковой топкой
Подходит для размещения в маленьких котельных
Работает с вентилятором и дымососом
Дутье и тяга регулируются шиберами, поставляются в комплекте с котлом
Надежная работа котла обеспечивается изготовлением трубной системы из трубы сталь 10 повышенной прочности
Отапливаемая площадь помещения от 5800 до 8300 м2, отапливаемый объем от 17100 до 24600 м3.
Температура 95, 115 градусов.
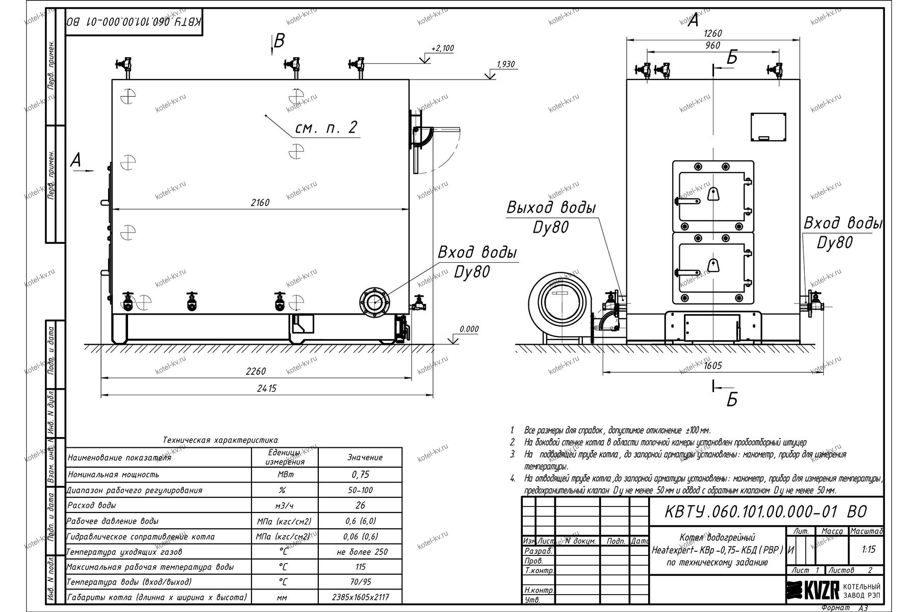
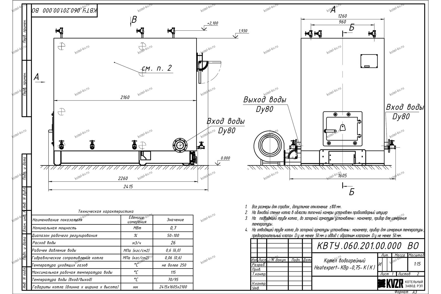
Марка котла | Котел КВр | Топливо | Уголь, Твердотопливный |
---|---|---|---|
Максимальная тепловая мощность, кВт | 750 | Тяга | Уравновешенная |
Максимальная тепловая мощность, МВт | 0.75 | Низшая теплота сгорания топлива УГОЛЬ, кКал/кг | 5230 |
Максимальная тепловая мощность, Гкал | 0.64 | Температура воды, °C | 70-95, 90-115 |
КПД (УГОЛЬ), не менее, % | 82 | Давление рабочей среды, МПа (кгс/cм²) | 0.3-0.6 |
Аэродинамическое сопротивление, Па (мм. вод. ст.) | 190 | Гидравлическое сопротивление при перепаде t, МПа (кгс/cм²) | Не более 0.07 (0.7) |
Температура уходящих газов, °C | 250 | Габаритные размеры котельного блока, длина*ширина*высота, мм | 2400х1600х2150 |
Расход топлива при максимальной нагрузке котла (УГОЛЬ), кг/ч | 151 | Масса, кг | 2300 |
Расход теплоносителя среды, м³/ч | 26 | Вид топки | ручная |
Расход условного топлива, кг/ч | 113 | Тип котла | Водогрейный |
Отапливаемая площадь, м² | 5800-8300 | Энергоэффективность | Высокая |
Расход топлива среднечасовой за отопительный сезон, кг/ч | 86.3 | Бренд | HeatExpert |
Отапливаемый объем, м³ | 17100-24600 |
Это устройство работает со вспомогательным оборудованием, которое приобретается отдельно. Если вы хотите сразу узнать стоимость всей установки, добавьте заинтересовавшие вас позиции в корзину. Чтобы точно расчитать стоимость доставки до вашего объекта, укажите его адрес в корзине и оправьте нам заявку. Обычно мы отвечаем в течение дня.


Котел КВр 0.75 К
Шибер газохода котла КВр 0.75 МВт
Колосниковая топка котла КВр 0.75
Обмуровка котла КВр 0.75 МВт
Изготовление котла КВр 0.75 МВт
Конструкция котла КВр 0.75 МВт
Производство котла КВр 0.75 МВт
Водогрейный промышленный котел 750 КВт на угле с колосниковой топкой
Основные технические характеристики:
- мощность 750 КВт, 0,75 МВт, 0,64 ГКал;
- максимальная температура 115 °С;
- топливо – каменный и бурый уголь;
- давление не более 0,6 МПа;
- котел работает с вентилятором поддува и с дымососом. Наш завод также производит котлы мощностью 750 КВт, работающие с вентилятором и без дымососа.
- отапливаемый объем от 17100 до 24600 м3 (в зависимости минимальной температуры в регионе эксплуатации). Проверить или подобрать мощность котла в Анадыре для вашего объекта вы можете по ссылке.
- устанавливается в котельных административных, производственных зданий, отопительных котельных ЖКХ, блочно-модульных котельных.
Принцип работы водогрейного угольного котла 750 КВт для отопления
Твердое топливо сгорает в топке. Горячие газы омывают трубную систему и нагревают воду до 115 °С.
Циркуляция воды в котельном агрегате производится циркуляционным насосом. Для восполнения теплоносителя, теряемого при дренировании и в теплосети, производится подпитка подпиточным насосом.
В твердотопливном котле на угле, очень важно не допускать горения угля в топке при выключенном вентиляторе, так как поступающий воздух охлаждает колосники. При выключенном вентиляторе, колосники могут деформироваться от перегрева и их нужно будет преждевременно менять.
Водогрейный угольный котел 750 КВт должен быть укомплектован автоматикой. Заводская автоматика ограничивает предельно допустимые параметры работы, температуру и давление воды, минимальный расход теплоносителя, поддерживает минимально допустимое разряжение.
Водно-химический режим водогрейного котла должен быть организован в соответствии с требованиями руководства по эксплуатации и нормативной литературы по тепловым энергоустановкам и тепловым сетям. Для подбора водоподготовительной установки требуется провести химический анализ воды.
Все необходимое котельно-вспомогательное оборудование для подключения угольного котла 750 КВт в Анадыре вы можете купить на нашем котельном заводе.
Подключение промышленного котла на угле 750 кВт в Анадыре
Подключение и монтаж производятся по проекту.
Один из вариантов схемы подключения угольного котла 750 КВт.
Безопасность котла
Безопасная эксплуатация котла обеспечивается выполнением требований
- Инструкции по эксплуатации
- Правил устройства и безопасной эксплуатации водогрейных котлов с температурой нагрева воды не выше 115 °С
- Правил технической эксплуатации тепловых энергоустановок
Водогрейный котел 750 КВт на угле должен управляться автоматикой безопасности, имеющей сертификат соответствия.
Одним из самых важных устройств, обеспечивающих безопасную эксплуатацию водогрейного котла, является предохранительный клапан. Расчет пропускной способности для каждой мощности приведен в паспорте котла.
Необходимые условия монтажа и эксплуатации производственного котла 750 КВт представлены в паспорте и руководстве по эксплуатации.
Гарантии изготовителя
На заводе изготовителе промышленный водогрейный котел 750 КВт на угле подвергается гидравлическому испытанию давлением 0,9 МПа (9 кгс/см2).
Гарантийное обслуживание включает в себя бесплатное устранение скрытых заводских дефектов, замену деталей и узлов вышедших из строя в период гарантийного срока при условии монтажа и эксплуатации оборудования Покупателем в соответствии с его назначением, технической документацией, техническими нормами, правилами ввода в эксплуатацию и эксплуатации данного оборудования.
Срок эксплуатации угольного котла 10 лет.
Купить котел 750 квт на угле в Анадыре
Промышленный водогрейный котел 750 КВт на угле- температура 115 градусов; - отапливаемая площадь* от 5800 до 8300 м2; - отапливаемый объем* от 17100 до 24600 м3 (* диапазон для самого холодного и самого теплого региона РФ)); - применение для отопления производства, жилых зданий, цехов, складов, промышленных предприятий.
Предлагаем вам подобрать мощность водогрейного промышленного котла по отапливаемой площади и объему, с учетом типа строения и данных о температуре в регионе и в Анадыре, вида топлива.
Выбор водогрейного котла для котельной производится по каталогу отопительного оборудования нашего Котельного завода с помощью калькулятора подбора мощности. Водогрейные котлы отопления для промышленных предприятий предлагается выбрать из модельного ряда газовых, дизельных, мазутных, твердотопливных угольных и дровяных котлов, с ручными и автоматическими топками мощностью от 150 кВ до 4 МВт, и температурой нагрева теплоносителя до 115 градусов.
Подбор мощности водогрейного промышленного котла для отопления учитывает:
- температуру в самую холодную пятидневку в отопительный сезон. Для каждого региона РФ температура различна, данные берутся из СП 131.13330 «Строительная климатология»;
- тепло, необходимое для возмещения потерь тепла через ограждения, окна, двери здания и тепловые потери через не плотности строения и открываемые двери;
- температуру воздуха внутри помещений. Для различных типов и назначений строений она существенно отличается:
Тип отапливаемого строения | Температура внутри помещения |
---|---|
Жилые строения и административные здания | + 20 С° |
Больницы, детские сады | + 22 С° |
Учебные заведения, предприятия общепита, учреждения культуры, школы | + 16 С° |
Магазины и депо | + 15 С° |
Кинотеатры | + 14 С° |
Гаражи | + 10 С° |
Бани | + 25 С° |
- объем строения. Для определения наружного объема строения площадь по наружным стенкам строения на уровне первого этажа перемножается на высоту. Для панельных домов высота определяется: от уровня пола (нулевой отметки) до верхней плоскости теплоизоляционного слоя чердачного покрытия. Для остальных зданий высота определяется от уровня земли. Подбор мощности для отопления различных по назначению строений считается отдельно. Все полученные значения мощности складываются.
Подбор мощности водогрейного промышленного котла производится для общей суммарной мощности каждого отдельно стоящего задания.
Если вам требуется подобрать мощность котла в Анадыре для котельной с учетом вентиляции здания, горячего водоснабжения объекта, потерь в теплотрассе - необходимо производить более подробный расчет. Данный расчет мы можем произвести для вас бесплатно. Отправьте опросный лист и заявку на электронный адрес sale@kotel-kv.ru или позвоните по телефону 8 (800) 551-70-98.